最新资讯
车主都在看
- •2016新版科目二考试技巧图解 01-13
- •驾考科目二5项技巧汇总 01-13
- •补办驾驶证需要什么资料 01-12
- •驾驶证到期换证注意事项 01-12
- •科目二倒车入库点位图解 01-12
- •新手上路开车技巧 这些教练都不会教 01-12
- •超实用侧方停车技巧 新手必看 01-12
- •开车起步步骤 开车起步技巧 01-12
全国[切换]
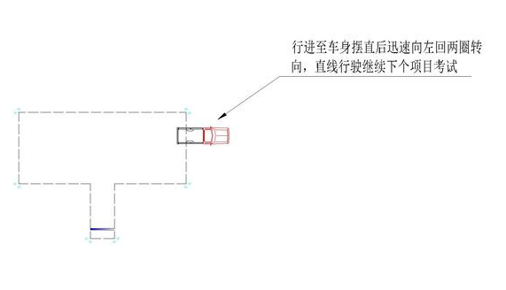
下面和大家讲下皮卡车的倒车入库,虽然现在皮卡车很少出现在驾校场地上,但下面这12幅图还是值得大家借鉴的。倒车入库原理都是差不多。











总结:
这么详细的倒车入库技巧图解希望大家耐心看完。那么在进行科目二倒车入库考试的时候是不是已经不担心了呢?